Appartement de type 5 de 108 m² A VENDRE - ST BONNET DE MURE - 108 m2 - 355 000 €
Appartement de type 5 de 108 m²
Saint Bonnet de Mure, situé au 1er étage avec ascenseur d'un immeuble de 1990 récemment ravalé, ce local professionnel à usage médical de 108 m² constitue une opportunité rare pour un projet d'habitation familiale, avec changement de destination en habitation déjà accepté.
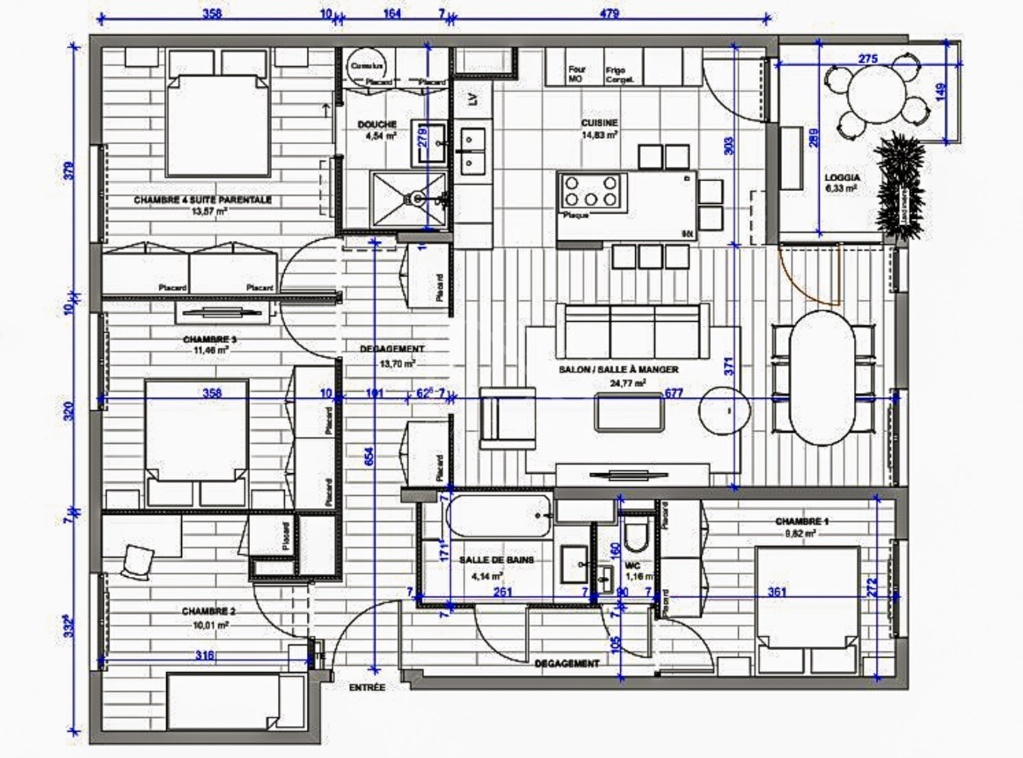
Grâce à ses beaux volumes, le bien permet l'aménagement d'un appartement spacieux de 4 chambres. Un plan d'architecte est fourni, offrant une projection chiffrée claire et rassurante d'un agencement fonctionnel, pensé pour le confort et la vie de famille.
La future distribution permet d'envisager une pièce de vie conviviale et lumineuse, des chambres confortables et une organisation fluide au quotidien. Le bien est déjà équipé de la climatisation, garantissant un confort optimal en toute saison.
Un balcon, un garage et une cave complètent ce bien et répondent pleinement aux besoins d'une famille.
Idéalement situé à proximité immédiate du centre-ville, le bien bénéficie d'un environnement pratique et recherché, avec commerces, transports en commun et services accessibles à pied. À quelques pas, un jardin public avec aire de jeux offre un espace de détente et de loisirs parfaitement adapté aux enfants.
Implanté dans une copropriété bien entretenue, ce bien réunit sécurité administrative, qualité de construction et fort potentiel, pour créer un lieu de vie familial sur mesure, alliant confort, tranquillité et vie urbaine.
Les informations sur les risques auxquels ce bien est exposé sont disponibles sur le site Géorisques : www.georisques.gouv.fr
Réf : 955
Nous aimons
- Centre ville, 4 chambres, garage, commerces, balcon, climatisation, cave
Caractéristiques
Aménagements
- construit en : 1990
- cuisine : sans cuisine
- chauffage : individuel electrique
- climatisation : oui
Copropriété
- soumis au statut de la copropriété : oui
- copropriété : 58 lots
- montant moyen annuel des charges courantes : 3 584 €/an soit 298,67 €/mois
- procédure en cours : non
Informations financières
- honoraires à charge : du vendeur
Quelques surfaces plus en détail
Surfaces données à titre indicatif – Non contractuelles :
- Entree (niveau 1) : 13.7 m2
- Chambre 1 (niveau 1) : 9.8 m2
- Chambre 2 (niveau 1) : 10 m2
- Chambre 3 (niveau 1) : 11.4 m2
- Chambre 4 (niveau 1) : 13.6 m2
- Salle d'eau (niveau 1) : 4.5 m2
- Salle de bains (niveau 1) : 4.5 m2
- Cuisine (niveau 1) : 14.5 m2
- Salle a manger (niveau 1) : 24.8 m2
- Wc (niveau 1) : 1.2 m2
Voir quelques surfaces plus en détailImprimer la ficheVoir nos prestations et tarifs
Classe énergie et classe climat
dont émissions de Gaz à effet de serre
En savoir plus
Classe énergie et classe climat
Connexion internet
| | Fibre plus de 1 Gbit/s Câble de 100 Mbit/s à 1 Gbit/s |
Données en provenance de l'Arcep
Montant estimé des dépenses annuelles d'énergie
Les dépenses d'énergie sont estimées entre 1 410 € et 1 970 € par an selon l'année de référence 2023.
Estimation de dépenses en fonction du logement et pour une utilisation standard sur 5 usages (chauffage, eau chaude sanitaire, climatisation, éclairage, auxiliaires).
L'agence
FRANCHET ET CIE
FRANCHET TRANSACTION
2 Place Bellecour
69002 LYON 2EME ARRONDISSEMENT
Tél : 06.24.59.12.60
Contactez-nous via ce formulaire ou appelez-nous pour visiter ce bien
Ecoles, transports, sorties et commerces sur ST BONNET DE MURE (69720)
St Bonnet De Mure est une ville de 6 920 habitants. Côté immobilier, les habitations sont réparties en 77 % de maisons et 23 % d'appartements. On y trouve des commerces dont des supermarchés ou supérettes. On trouve des établissements scolaires et des crèches à St Bonnet De Mure.
En savoir plus sur St Bonnet De Mure



